Hälfteanteil an EFH - Zwangsversteigerung
reedb-id: 1299899
Contactgegevens:
Versteigerungsdatum und -zeit: am 21.01.2026 um 10:00 Uhr
Versteigerungsort: Bezirksgericht Hietzing, Dommayergasse 12, 1130 Wien, 4.Stock, Saal VI
Versteigerungsort: Bezirksgericht Hietzing, Dommayergasse 12, 1130 Wien, 4.Stock, Saal VI
Vrijstaand huis Woest Veiling / Foreclosure Oostenrijk

Vrijstaand huis
Foreclosures
Getaxeerde waarde, marktwaarde € 1,121,000 (≈ US$ 1,301,000)
AT-1130 Woest, Hiet, Hörndlwaldgasse 4
Woest, Oostenrijk
Financiën
Veilingdatum 21.01.2026
1,301,000)
Getaxeerde waarde, marktwaarde € 1,121,000 (≈
Gebieden
Leefruimte4,065.10 sq.ft
Land0.17 acre
Beschrijving
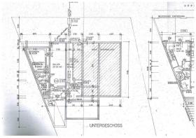
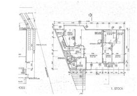
Mit Beschluss des Bezirksgerichts Hietzing vom 23.8.2024 wurde die Schätzung der 1/2 Liegenschaftsanteile B-LNR 4 an EZ 466, Grundbuch 01201 Auhof angeordnet. Auf dem Grundstück in der Hörndlwaldgasse 4 sind ein Wohnhaus und eine Garage errichtet. Gemäß Bescheid der MA 37 – Bauinspektion Gebietsgruppe West 1160 Wien - vom 21.10.2020 wird der Abbruch des nicht konsensgemäß errichteten Nebengebäudes (Garage) aufgetragen. Die Erschließung des Grundstücks erfolgt über die nördlich gelegene öffentliche Straße (Hörndlwaldgasse). Das Wohngebäude besteht aus Untergeschoss (Teilunterkellerung), Erdgeschoss, Obergeschoss und einem Dachgeschoss mit Dachterrasse.
Vadium: 112.100,00 EUR
Geringstes Gebot: 560.500,00 EUR
Locatie
#Hiet
Beperking van aansprakelijkheid
Alle cijfers zijn bij benadering en kunnen afwijken van de werkelijke waarden.Die Daten zu diesem Objekt /Immobilie wurden manuell (nicht vom Anbieter) eingepflegt.
Für Vollständigkeit und Richtigkeit der Angaben kann keine Haftung übernommen werden.
Die aktuellen Daten entnehmen Sie gegebenenfalls von der angegebenen Seite oder setzen
Sie sich mit dem Anbieter in Verbindung.







data load ...
Bekijk